Tatianka писал(а):Диагональ геморройней прямой в плане реализации. Полукруг геморройней диагонали.3. При заходе в спальню сделать ли косой проем или лучше прямой? Или вообще из угла сделать полукруг и радиусные двери в спальню и ванну (если конечно поместятся)
Любые радиусные элементы существенно дороже прямых. И не факт, что их установят нормально. Если есть возможность без них - лучше без них попытайтесь обойтись.
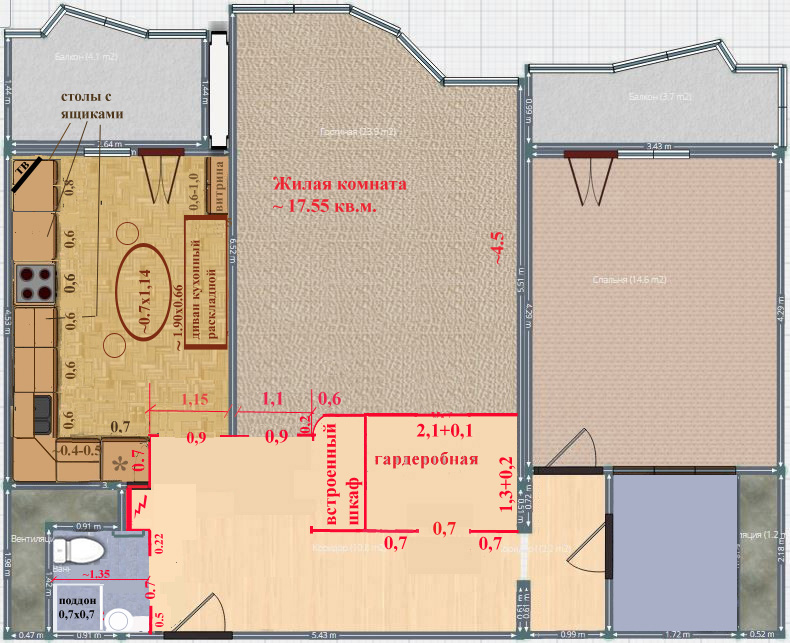
zxcasd6512 писал(а):А у меня в ИП-46С 1,8х1,4. Такая от застройщика досталась, предыдущие владельцы не перестраивали.У меня 2 на 2 метра. вешалка 0,7 с другой стороны полки 40 остальное проход.
И я подумала на тему, какое у нее будет наполнение, и тоже решила не перестраивать.
Видела готовые решения, вполне пригодна такая гардеробная и для хранения вещей, и для переодевания.
Даже удивилась, насколько сушники правильно влепили дверной проем. Там дверной проем по широкой стороне 1,8. По стене сделаны простенки 0,4 и 0,7. И 0,7 оставлено на установку 0,6 двери. Я посчитала, что там влезает, и никуда проем смещать не стала. 0,3 полки, 0,6 вешала, 0,9 проход и примерно те же самые 0,9 надо на установку двери 0,6 с наличниками.
Та гардеробная, которую я Татьянке нарисовала, получается с двумя рядами вешал по 0,6 слева и справа от входа. И по стене в конце гардеробной полки 0,3-0,4. По центру остается свободный квадрат примерно 0,9х0,9.
По-моему, для переодевания квадрата 0,9х0,9 достаточно, если человек не страдает ожирением.
Чтоб понять, реально ли в таком квадрате переодеваться, Татьянка может попробовать переодеться в туалете раздельного санузла. Там обычно размеры помещения близки к 0,9х0,9.



Либо полотенчик можно сделать над горшком. Но тогда всех домашних придется приучить горшок закрывать.




